Nhiều người luôn thắc mắc tự hỏi liệu một căn nhà phố kiểu Mỹ có gì đặc biệt không và cách bố trí không gian bên trong có giống với kiểu bố trí mà một căn nhà phố ở Việt Nam hay dùng? Ở bài này chúng ta hãy cùng nhau khám phá một căn nhà phố mẫu tại thành phố Philadelphia để xem thử thể loại nhà phố có hình hài như thế nào nhé
![]() |
| Mặt tiền dãy nhà phố kiểu Mỹ được xây san sát, thoạt nhìn cứ ngỡ như ở Việt Nam |
Tọa lạc tại khu dân cư phát triển mới của thành phố Philadelphia, Căn nhà phố có thiết kế kiểu hiện đại xuyên suốt từ mặt đứng bên ngoài cho đến nội thất bên trong. Điểm nhấn chính là một khu vực lõi trung tâm được ốp gỗ tạo sự kết nối xuyên suốt cho các không gian chức năng của ngôi nhà, ngoài ra còn giúp tạo được các không gian mở ra xung quanh và sự phân bổ giao thông thuận tiện giữa các tầng. Mà hơn hết nó còn mang chức năng trang trí giúp cho phần nội thất thêm phần thú vị
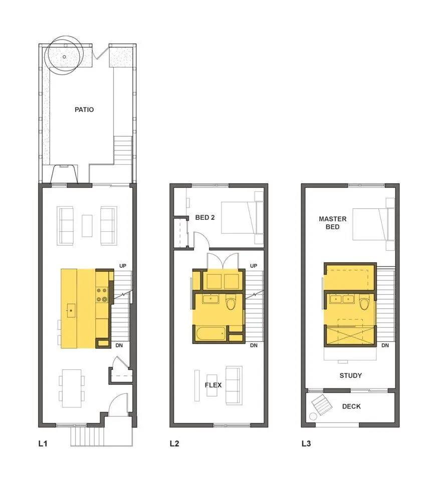
1. Các mặt bằng bố trí
Trước hết mời các bạn cùng tìm hiểu cách bố trí mặt bằng của căn nhà phố này, bao gồm 3 tầng chính của ngôi nhà.
![]() |
| Bố trí các mặt bằng từ tầng 1 đến tầng 3 căn nhà phố kiểu Mỹ xoay quanh một phần lõi ở trung tâm khá lạ mắt ( phần tô màu vàng nhạt) |
2. Mặt tiền ngôi nhà
![]() |
| Mặt tiền căn nhà phố kiểu Mỹ nổi bật với tông màu trắng tạo cảm giác hiện đại |
Sự tăng lên không ngừng về mặt dân số suốt hơn 50 năm qua đã kéo nên sự bùng nổ về mặt xây dựng. Kiểu nhà ở truyền thống dần được thay thế bởi kiểu nhà phố như thế này mỗi ngày nhiều hơn.
3. Không gian nội thất
Căn nhà được xây xen kẽ giữa hai nhà phố khác, tuy nhiên mặt tiền được sơn trắng của ngôi nhà nổi bật so với các ngôi nhà xung quanh nhờ ốp tấm Vinyl sọc ngang cùng với một ít gạch đỏ nhẹ.
![]() |
| Phòng bếp được bố trí ngay giữa nhà khá lạ mắt |
![]() |
| Chi tiết cầu thang ở giữa nhà |
4. Phòng tắm
![]() |
| Phòng hoàn thiện theo tông trắng tạo cảm giác sạch sẽ và rộng rãi |
![]() |
| Phần terrace trên mái tạo nên một khoảng không gian thư giản và ngắm cảnh tuyệt vời |
![]() |
| Sân sau tạo thành một mảnh vườn nhỏ xinh nhưng cũng đáng mơ ước |
5. Bản vẻ mặt cắt
![]() |
| Mặt cắt ngang ngôi nhà phố kiểu Mỹ gồm 3 tầng chính à một tầng hầm |
6. Thông tin về căn nhà
Tên dự án : Outside-In House
Kiến trúc thiết kế : ISA – Interface Studio Architects
Địa điểm xây dựng : Thành phố Philadelphia, bang Pennsylvania
Hoàn thành :2017
Ảnh chụp : Interface Studio Architects












